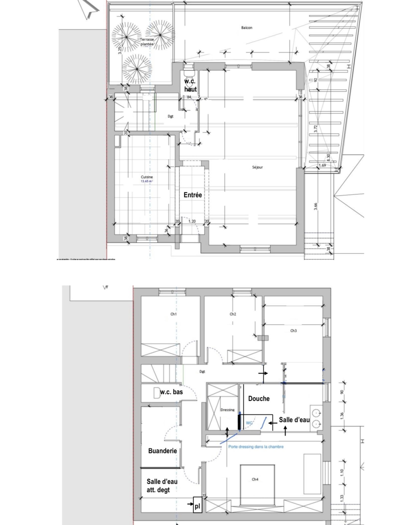
VENDU Un véritable cadre de nature et une splendide vue dégagée vers le Faron pour cette maison bâtie de façon tradtiionnelle en 1988, entièrement rénovée et isolée en 2020. Ce bien bénéficie d'une superficie habitable de 140m2 sur un terrain arboré d’env. 630m2. En Rez de chaussée se trouve une très belle pièce à vivre de plus de 55m2 avec une cuisine équipée ouverte sur le séjour et son plafond cathédrale, une large baie vitrée vient prolonger cet espace sur une agréable terrasse en surplomb du jardin. Le niveau inférieur comprend 4 chambres dont une suite parentale avec dressing / SDE et WC - une salle d'eau - un WC et une buanderie. Plusieurs places de stationnement possible au sein du jardin / Copropriété de deux lots avec une mitoyenneté au nord, sans charge à prévoir / évacuation des eaux usées par fosse septique / Climatisation réversible dans toutes les pièces / Double vitrage. Quelques précisions sur les alentours: Bus et boulangerie à 200m / les écoles des Moulins se situent à moins d’1 km, les commerces de la Chapelle à 1,5km / Accès rapide vers les axes routiers et autoroutiers. Nombreuses randonnées au départ de la maison. Un bien très agréable à vivre pour ceux qui souhaitent bénéficier d’un cadre champêtre et d’une situation au calme sans être éloigné des commodités.
