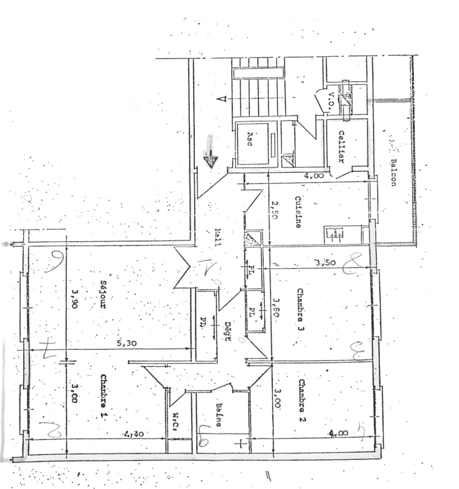
CE BIEN A ETE VENDU Toulon Castigneau / Saint Roch, dans une rue calme, à quelques pas de toutes commodités et du centre-ville. Très bel appartement situé dans une copropriété de bon standing avec ascenseur. D'une superficie habitable de plus de 91m2, ce vaste et lumineux T4 ent. rénové, est en très bon état. Parfaitement agencé, ce bien dispose d’une entrée - une pièce de vie d’env. 35m2 - une grande cuisine toute équipée avec son coin repas et son cellier attenant - 2 belles chambres disposant chacune d’un placard/dressing aménagé - une salle d'eau et un Wc. Très lumineux avec une exposition plein sud et traversante, cet appartement bénéficie d'un grand balcon d’env. 9m2 côté sud et d'un balcon plus petit au nord. Les véritables « plus » de ce bien, une rénovation complète en 2015 et des prestations de qualité (nombreux rangements - cuisine équipée Cuisinella et électroménagers NEFF - bibliothèque intégrée dans le séjour ARCHEA - double vitrage et stores électriques), une situation agréable au coeur d'un quartier animé, cet appartement "clés en mains" bénéficie de toutes les commodités au pied de l'immeuble. La Gare, les commerces, les écoles et le marché Provençal se trouvent à quelques minutes de marche.
